Villa in vendita a Vigevano
Classe energetica
EP glnr: 146.00 kwh/m²
Vendesi Villa di campagna/Casale in posizione tranquilla e riservata, immerso nel verde di circa 400 mq con 9.000,00 mq di area verde boschiva. La proprietà è situata prospicente la circonvallazione esterna di Vigevano nelle immediate vicinanze al supermercato, scuole e centro sportivo.
Si tratta di un'unica porzione immobiliare con la possibilità di divisione in due unità, in quanto è già stata prevista una predisposizione per la divisione. L’abitazione è circondata da un ampio giardino piantumato con piscina, zona solarium e un area parcheggio per le macchine.
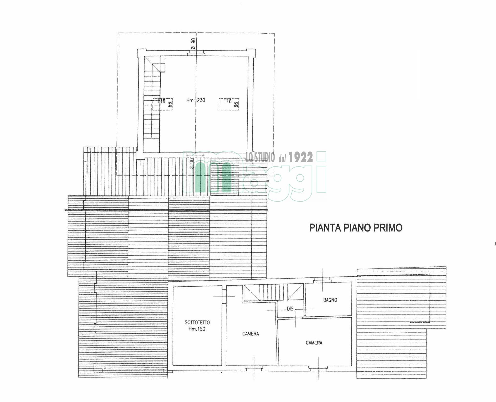
Il casale è stato ristrutturato nel 1990 e poi ampliato nel 2010, ed è suddiviso da due zone living uno con camino, una cucina, 5 camere, uno studio, 3 bagni, un grande sottotetto ad uso ripostiglio e veranda su un lato della casa. Gli impianti sono a norma con aria condizionata, allarme e video sorveglianza su tutto il perimetro della casa.
Completa la proprietà uno chalet di circa mq 50 composto da uno spazio open con angolo cottura e un bagno.
Parte dell'area verde retrostante la casa, attualmente a bosco ha un indice di edificabilità di ulteriori 400 m2 circa.
Richiesta € 1.100.000,00 APE Classe G IPE 202,67 KWh/m2a. Rif. 64794C























