Appartamento in affitto a Milano
Classe energetica
EP glnr: 125.00 kwh/m²
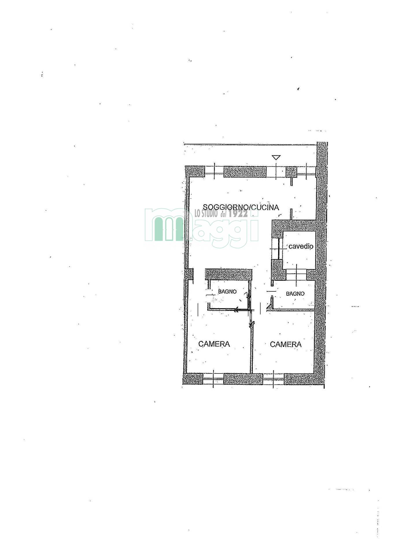
Porta Venezia e precisamente in Viale Piave affittasi Appartamento di 90 mq in perfetto stato così composto: ingresso soggiorno e pranzo, angolo cottura divisa dal soggiorno da una porta scorrevole, nella zona notte troviamo una camera matrimoniale con il bagno padronale e un’altra camera con un altro bagno. L'Appartamento viene affittato semi arredato con cucina e bagni arredati, e armadiature nelle camere. Lo stabile è d'epoca ed ha un servizio di portineria giornaliero, l'Appartamento si trova al secondo piano con doppio affaccio sulla via e sul grazioso cortile interno. Il riscaldamento è autonomo con caldaia in cucina e caloriferi nei vari locali. La zona è servita dai vari mezzi di superficie e dalla linea Metropolitana MM Porta Venezia e da numerosi negozi e dal polmone verde dei giardini di Palestro. Richiesta di Affitto € 1.900,00 al mese oltre le spese di circa 180,00 euro al mese. APE classe G IPE 125 KWh/m2a. Rif. 65400C



















