Appartamento in vendita a Milano
Classe energetica
EP glnr: 54.60 kwh/m²
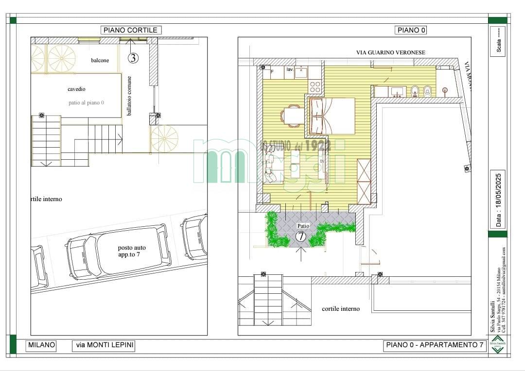
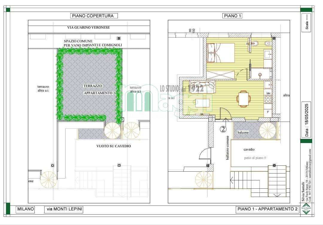
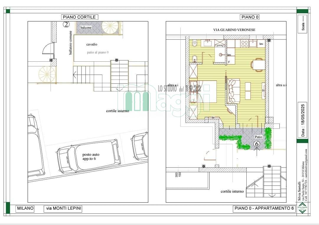
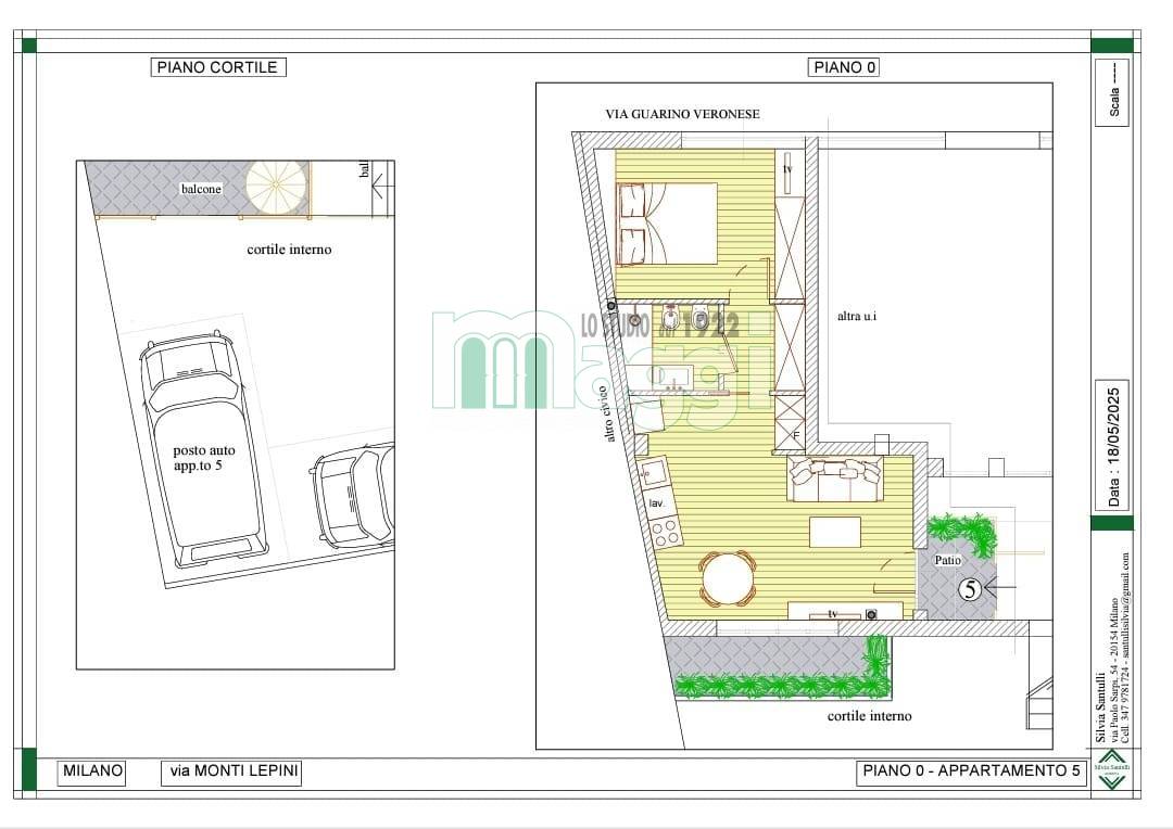
Zona adiacente V.le Molise/ P.le Cuoco, interessante operazione di frazionamento e ristrutturazione per la creazione e Vendita di otto bilocali disposti su due piani: quattro al piano seminterrato con patio e posto auto di pertinenza, e quattro al piano primo con balcone e terrazzo. Il cantiere prevede un intervento strutturale importante che comporterà il rifacimento totale delle solette, impianti, pavimenti, rivestimenti, e la climatizzazione di tutte le unità immobiliari che verranno consegnate completamente arredate. Saranno altresì ristrutturate le facciate con modifica e ampliamento delle superfici illuminanti. La fine lavori è prevista orientativamente per la fine di settembre. Le richieste variano da € 220.000 a € 350.000 in funzione del piano e delle caratteristiche. APE classe a3 kWh/m2a 54.60 Rif.66079 BE



















