Ufficio in affitto a Milano
Classe energetica
EP glnr: 175.00 kwh/m³
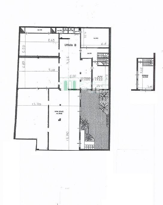
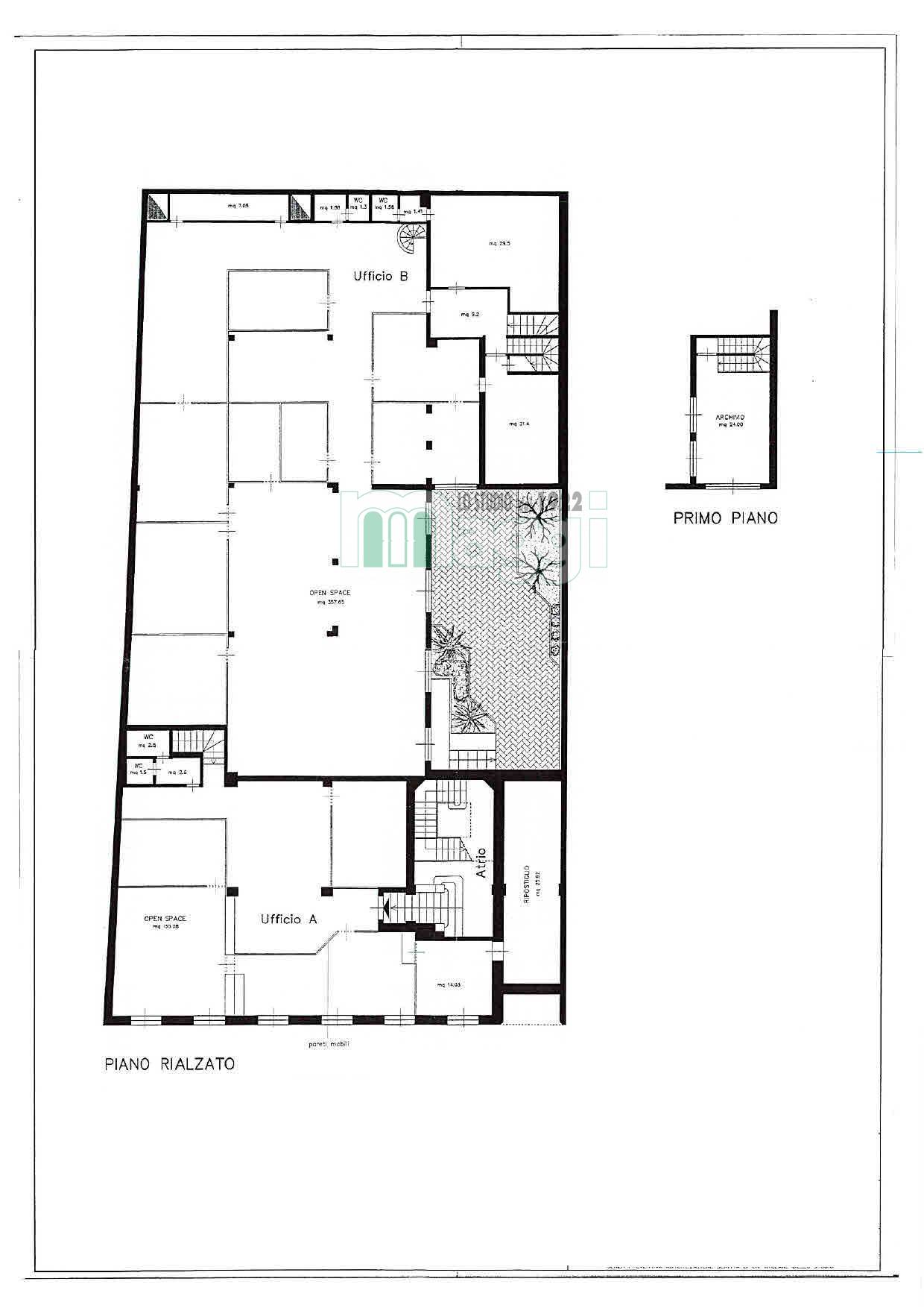
In Via Mercalli, Corso Italia adiacente fermata M4 Santa Sofia Centro storico in piccola palazzina d'epoca affittiamo ampio Ufficio con ingresso indipendente di circa 560 mq, così suddiviso piano terreno 80 mq circa con locali segreteria, bagni, zona ristoro, archivio/server e scala con accesso agli uffici sovrastanti. Al primo piano ampio spazio di 480 mq circa open space, attualmente suddiviso in 4 blocchi separati con pareti mobili con possibilità di personalizzare la disposizione interna secondo le proprie esigenze.
Lo stato di conservazione è buono e personalizzabile con intervento della proprietà, finiture di buona qualità e infissi nuovi. Le spese condominiali ammontano a 200 euro al mese e comprendono i servizi di pulizia e manutenzione delle parti comuni. Il riscaldamento è autonomo.
Le stanze possono essere separate o open space, che permette di creare un ambiente di lavoro aperto e collaborativo, ma con la possibilità di avere spazi riservati.
La palazzina in cui si trova l'immobile è molto ben curata, ingresso indipendente con passo carraio e possibilità di carico scarico e offre servizi aggiuntivi come dei posti auto e cortile comune piantumato.
L' ubicazione dell' Ufficio è strategica in quanto si trova nelle immediate vicinanze della fermata M4 " Santa Sofia" e ai principali mezzi di trasporto pubblici. Questo lo rende ideale per chi cerca un luogo di lavoro prestigioso e ben collegato con il resto della città. Ape classe F kwh/m3a 175 Rif. 66153V





































