Appartamento in vendita a Milano
Classe energetica
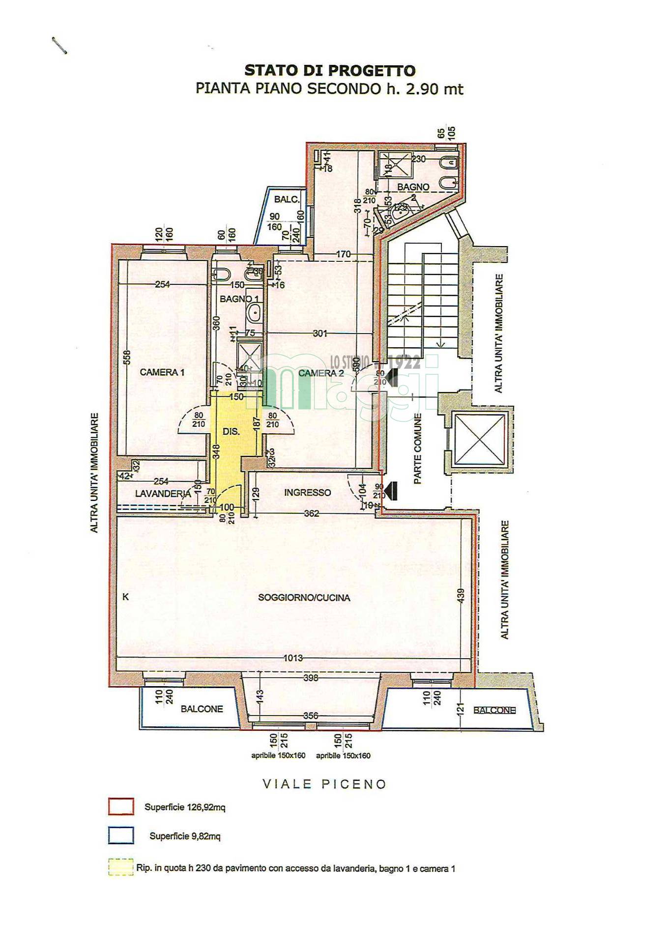
A pochi passi da Piazzale Dateo, in un quartiere tranquillo ma perfettamente collegato, proponiamo in Vendita esclusiva un meraviglioso Appartamento di 135 mq, completamente rinnovato in un elegante palazzo degli anni '60.
Questa casa è un vero gioiello, pensata per chi cerca spazio, luce e flessibilità. L'immobile vanta una luminosità eccezionale grazie alla sua doppia esposizione e ai suoi tre comodi balconi. La recente e completa ristrutturazione ha saputo unire il design moderno al massimo della praticità.
Entrando, sarai accolto da un doppio ingresso che suggerisce subito l'estrema versatilità degli spazi: puoi infatti ricavare facilmente una zona indipendente, perfetta per lo studio o per generare una rendita. Il cuore della casa è l'ampio soggiorno, connesso a una cucina a isola di design, già attrezzata e inclusa nel prezzo. A completare la zona giorno, trovi una lavanderia.
La zona notte offre due spaziose camere da letto e due bagni. Le finiture sono di altissima qualità: dai pavimenti in Kerlite effetto Marmo Bianco Statuario agli infissi con doppi vetri e all'aria condizionata. L'attenzione ai dettagli si nota negli armadi e nella cucina, tutti realizzati su misura.
La posizione è semplicemente imbattibile. Sei a un passo dalla nuovissima M4 Dateo e dal Passante Ferroviario, che ti garantiscono spostamenti rapidi verso il centro e l'aeroporto di Linate. La zona è servitissima, con supermercati, negozi e ogni comodità letteralmente sotto casa. Richiesta € 970.000,00 Ace classe D kWh/m2a 143,29 Rif. 66268L.
In collaborazione con Ducati Case















